








For sale: Two-bedroom apartment 108 m2, Budva
-
2
-
108 m2
Description
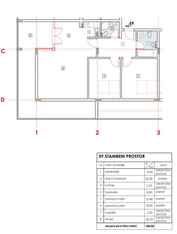
IDD2756 1. Entrance Hall – 8.40 m², with ceramic tiles. 2. Living Room – a spacious room of 23.35 m², with parquet flooring, provides space for comfortable living. 3. Kitchen – 5.25 m², with ceramic tiles on the floor, suitable for practical use. 4. Dining Room – 8.85 m², with parquet flooring, ideal for family meals. 5. Bedroom 1 – 12.45 m², with parquet flooring, offers a cozy space for rest. 6. Bedroom 2 – 13.95 m², also with parquet flooring. 7. Bathroom – 5.05 m², with ceramic tiles. 8. Terrace – large terrace of 30.70 m², with ceramic tiles, excellent for relaxation. For more information, contact us at: https://www.searealty.me/en/contact --- RU: 1. Прихожая – 8.40 м², с керамической плиткой. 2. Гостиная – просторная комната площадью 23.35 м², с паркетным полом, обеспечивает место для комфортного проживания. 3. Кухня – 5.25 м², с керамической плиткой на полу, подходит для практичного использования. 4. Столовая – 8.85 м², с паркетным полом, идеально подходит для семейных обедов. 5. Спальня 1 – 12.45 м², с паркетным полом, обеспечивает уютное место для отдыха. 6. Спальня 2 – 13.95 м², также с паркетным полом. 7. Ванная комната – 5.05 м², с керамической плиткой. 8. Терраса – большая терраса площадью 30.70 м², с керамической плиткой, отлично подходит для отдыха. Для получения дополнительной информации свяжитесь с нами по адресу: https://www.searealty.me/ru/sviazatsya --- TR: 1. Antre – 8.40 m², seramik karolarla döşenmiş. 2. Oturma Odası – 23.35 m² genişliğinde, parke zeminli, rahat bir yaşam alanı sunar. 3. Mutfak – 5.25 m², seramik karolarla döşenmiş, pratik kullanım için uygun. 4. Yemek Odası – 8.85 m², parke zeminli, aile yemekleri için idealdir. 5. Yatak Odası 1 – 12.45 m², parke zeminli, dinlenmek için rahat bir alan sunar. 6. Yatak Odası 2 – 13.95 m², aynı şekilde parke zeminli. 7. Banyo – 5.05 m², seramik karolarla döşenmiş. 8. Teras – 30.70 m² genişliğinde büyük teras, seramik karolarla döşenmiş, dinlenmek için mükemmel. Daha fazla bilgi için bize şu adresten ulaşabilirsiniz: https://www.searealty.me/tr/iletişim
Amenities
- Parking
- Air Conditioning
- Radiators
- Balcony Air Conditioning
- Lift
Details
- Reference ID:
- 2756
- Published On:
- Jun 02, 2025
- Property Type:
- Apartment
- City:
- Budva
- Neighborhood:
- Price per Sqm:
- Price Upon Request
- Furnish Type:
- Namješteno
- Floor:
- Year Built:
Responsibility and Purchase Service Cost
The buyer is responsible for paying the notary fee, any applicable real estate transfer tax, and any associated legal fees. Sea Realtor Agency is not liable for the accuracy of the information presented here; it is solely based on information that we have received from our clients or owners. Sea Realtor Agency shall not be obligated to update, amend, change, or otherwise notify the reader of any subject included herein, or of any opinion, projection, prediction, or estimate put out herein, or of any modification that may have an impact on the accuracy of the urbanistic and cadaster information. The buyer is not charged an agency commission; rather, the seller(s) pays the agency fee.