
Urbanized land for sale, 4600 m2 (GBA: 2760 m2), Budva, Sveti Stefan
-
2760 m2
-
4600 m2
Description
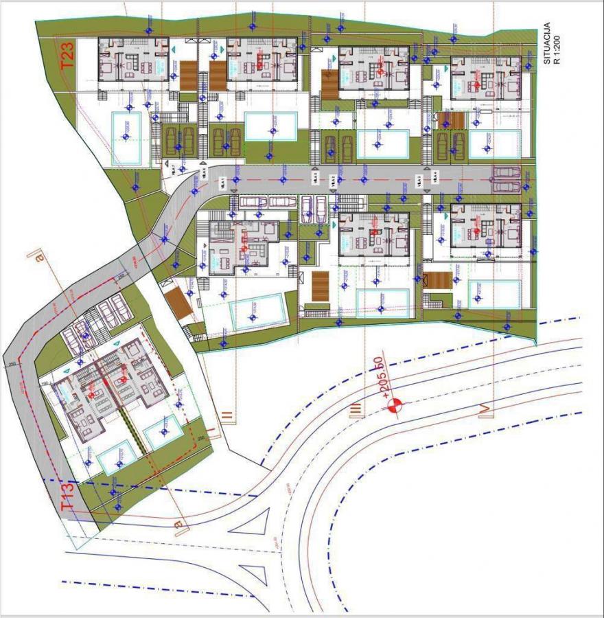
IDP2873 The plot is urbanized and divided into two urban plots with 9 buildings for which building permits have been obtained, the main project has been completed, utilities have been paid, and all consents have been secured. The total area of the buildings is 2,174 m² (7 villas, which can be divided into apartments, each 220 m² + 35 m² of technical rooms, and 2 townhouses each 174 m² + 30 m² of technical rooms) across three levels: S+F+1. The occupancy coefficient is 0.20, and the construction coefficient is 0.60. Roads and water have been brought to the plot. It has an excellent view of the sea. For more information, contact us at: https://www.searealty.me/en/contact --- RU: Участок урбанизирован и разделен на два городских участка с 9 зданиями, для которых получены разрешения на строительство, основной проект завершен, коммунальные услуги оплачены и получены все согласования. Общая площадь зданий составляет 2,174 м² (7 вилл, которые можно разделить на квартиры, каждая 220 м² + 35 м² технических помещений, и 2 таунхауса, каждый 174 м² + 30 м² технических помещений) на трех уровнях: S+F+1. Коэффициент застройки составляет 0.20, а коэффициент строительства – 0.60. Дороги и вода подведены к участку. Участок имеет отличный вид на море. Для получения дополнительной информации свяжитесь с нами по адресу: https://www.searealty.me/ru/sviazatsya --- TR: Arsa, 9 bina için inşaat izinleri alınmış, ana proje tamamlanmış, altyapı ödemeleri yapılmış ve tüm onaylar alınmış olan iki kentsel parsel olarak düzenlenmiştir. Binaların toplam alanı 2,174 m²'dir (her biri 220 m² + 35 m² teknik odalara sahip 7 villa ve her biri 174 m² + 30 m² teknik odalara sahip 2 müstakil ev) üç katlı S+F+1 olarak inşa edilmiştir. İşgal katsayısı 0.20, inşaat katsayısı ise 0.60'dır. Yola ve suya arsa getirildi. Denize mükemmel bir manzarası vardır. Daha fazla bilgi için bize şu adresten ulaşabilirsiniz: https://www.searealty.me/tr/iletişim
Details
- Reference ID:
- 2873
- Published On:
- May 29, 2025
- Property Type:
- Urbanized Land
- City:
- Budva
- Neighborhood:
- SVETI STEFAN
- Price per Sqm:
- € 348
- Furnish Type:
- Floor:
- Year Built:
Responsibility and Purchase Service Cost
The buyer is responsible for paying the notary fee, any applicable real estate transfer tax, and any associated legal fees. Sea Realtor Agency is not liable for the accuracy of the information presented here; it is solely based on information that we have received from our clients or owners. Sea Realtor Agency shall not be obligated to update, amend, change, or otherwise notify the reader of any subject included herein, or of any opinion, projection, prediction, or estimate put out herein, or of any modification that may have an impact on the accuracy of the urbanistic and cadaster information. The buyer is not charged an agency commission; rather, the seller(s) pays the agency fee.