







Na prodaju: Dvosoban stan 108 m2, Budva
-
2
-
1
-
108 m2
Opis
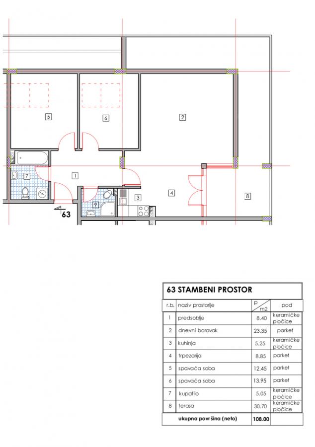
IDD2754 Prodaje se dvosoban stan ukupne površine 108m², koji se sastoji od sledećih prostorija: - Predsoblje (8.40m²) sa podnim oblogama od keramičkih pločica. - Dnevni boravak (23.35m²) sa parketom, prostran i osvetljen, idealan za porodična okupljanja. - Kuhinja (5.25m²) sa keramičkim pločicama, praktično pozicionirana uz trpezariju. - Trpezarija (8.85m²) sa parketom, povezana sa dnevnim boravkom i kuhinjom. - Dvije spavaće sobe od 12.45m² i 10.98m² sa parketom, pružaju komfor za spavanje i odmor. - Kupatilo (5.05m²) sa keramičkim pločicama, moderno opremljeno. - Terasa (30.70m²) sa podnim oblogama od keramičkih pločica, savršena za uživanje u pogledu. Stan je funkcionalno raspoređen, a velika terasa pruža dodatni prostor za opuštanje. Nalazi se u mirnom delu grada, idealno za porodice ili one koji traže komfor i udobnost. Za više informacija, kontaktirajte nas na: https://www.searealty.me/me/kontakt
Sadržaji
- Klima
- Radijatori
- Balcony Klima
- TV
- Lift
- Security System Klima
Detalji
- Ref. ID:
- 2754
- Objavljeno:
- Jun 02, 2025
- Tip nekretnine:
- Stan
- Grad:
- Budva
- Mjesto:
- Cijena po m2:
- Cijena na upit
- Tip namještaja:
- Namješteno
- Sprat:
- Godina izgradnje:
Odgovornost i troškovi kupovine
Kupac je odgovoran za plaćanje notarskih taksi, bilo kojeg poreza na prenos nekretnina i svih povezanih pravnih troškova. Agencija Sea Realtor nije odgovorna za tačnost informacija prikazanih ovdje; iste se isključivo zasnivaju na informacijama koje smo dobili od naših klijenata ili vlasnika. Agencija Sea Realtor nije u obavezi da ažurira, mijenja, dopunjuje ili na bilo koji način obavještava čitaoca o bilo kojoj temi uključujući ovdje, niti o bilo kojem mišljenju, projekciji, predviđanju ili procjeni prikazanoj ovdje, niti o bilo kojoj izmjeni koja može uticati na tačnost urbanističkih i katastarskih podataka. Kupcu se ne naplaćuje agencijska provizija; umjesto toga, proviziju agenciji plaća prodavac/prodavci.