








Na prodaju: dupleks stan sa terasom 107 m2
-
2
-
1
-
107 m2
Opis
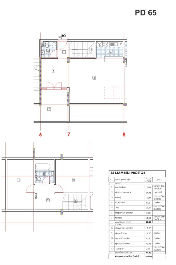
IDD2755 Prodaje se dupleks stan ukupne površine 107m², sa funkcionalnim rasporedom i prostranom terasom. Stan se sastoji iz dva nivoa: I nivo (65.60m²): - Predsoblje (2.40m²) sa keramičkim pločicama. - Prostran dnevni boravak (24.45m²) sa parketom, idealan za odmor i druženje. - Kuhinja (5.20m²) sa keramičkim pločicama, praktična i moderno opremljena. - Trpezarija (9.05m²) sa parketom, povezana sa kuhinjom. - WC (2.70m²) sa keramičkim pločicama. - Stepenišni prostor (5.00m²) vodi do gornjeg nivoa. - Prostrana terasa (14.10m²) sa keramičkim pločicama, savršena za opuštanje. II nivo (41.40m²): - Stepenišni prostor (3.10m²) sa keramičkim pločicama. - Degažman (3.60m²) povezuje spavaći deo. - Dve spavaće sobe (11.10m² i 9.25m²) sa parketom, pružaju komfor za spavanje. - Kupatilo (4.25m²) sa keramičkim pločicama. Za više informacija, kontaktirajte nas na: https://www.searealty.me/me/kontakt
Sadržaji
- Parking
- Klima
- Radijatori
- Balcony Klima
- TV
Detalji
- Ref. ID:
- 2755
- Objavljeno:
- Jun 02, 2025
- Tip nekretnine:
- Stan
- Grad:
- Budva
- Mjesto:
- Cijena po m2:
- Cijena na upit
- Tip namještaja:
- Namješteno
- Sprat:
- Godina izgradnje:
Odgovornost i troškovi kupovine
Kupac je odgovoran za plaćanje notarskih taksi, bilo kojeg poreza na prenos nekretnina i svih povezanih pravnih troškova. Agencija Sea Realtor nije odgovorna za tačnost informacija prikazanih ovdje; iste se isključivo zasnivaju na informacijama koje smo dobili od naših klijenata ili vlasnika. Agencija Sea Realtor nije u obavezi da ažurira, mijenja, dopunjuje ili na bilo koji način obavještava čitaoca o bilo kojoj temi uključujući ovdje, niti o bilo kojem mišljenju, projekciji, predviđanju ili procjeni prikazanoj ovdje, niti o bilo kojoj izmjeni koja može uticati na tačnost urbanističkih i katastarskih podataka. Kupcu se ne naplaćuje agencijska provizija; umjesto toga, proviziju agenciji plaća prodavac/prodavci.