








Na prodaju: Dvosoban stan 108 m2, Budva
-
2
-
108 m2
Opis
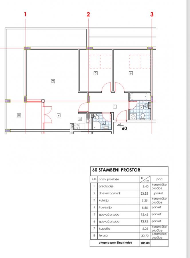
IDD2757 Stan se sastoji od ukupne neto površine od 108 m² i uključuje sledeće prostorije: 1. Predsoblje – površine 8.40 m², sa keramičkim pločicama na podu. 2. Dnevni boravak – prostrana soba od 23.35 m², sa parketom na podu, koja nudi dovoljno prostora za udoban boravak. 3. Kuhinja – površine 5.25 m², sa podom od keramičkih pločica, idealna za praktičnu upotrebu. 4. Trpezarija – površine 8.85 m², sa parketom na podu, povezana sa dnevnim boravkom i kuhinjom. 5. Spavaća soba 1 – površine 12.45 m², sa parketom na podu, udobna za odmor. 6. Spavaća soba 2 – površine 13.95 m², takođe sa parketom na podu. 7. Kupatilo – površine 5.05 m², sa keramičkim pločicama. 8. Terasa – velika terasa površine 30.70 m², sa keramičkim pločicama, savršena za opuštanje na otvorenom. Stan je funkcionalno organizovan, sa prostranim dnevnim boravkom i velikom terasom, idealan za porodicu. Za više informacija, kontaktirajte nas na: https://www.searealty.me/me/kontakt
Sadržaji
- Parking
- Klima
- Radijatori
- Balcony Klima
- Lift
Detalji
- Ref. ID:
- 2757
- Objavljeno:
- Jun 02, 2025
- Tip nekretnine:
- Stan
- Grad:
- Budva
- Mjesto:
- Cijena po m2:
- Cijena na upit
- Tip namještaja:
- Namješteno
- Sprat:
- Godina izgradnje:
Odgovornost i troškovi kupovine
Kupac je odgovoran za plaćanje notarskih taksi, bilo kojeg poreza na prenos nekretnina i svih povezanih pravnih troškova. Agencija Sea Realtor nije odgovorna za tačnost informacija prikazanih ovdje; iste se isključivo zasnivaju na informacijama koje smo dobili od naših klijenata ili vlasnika. Agencija Sea Realtor nije u obavezi da ažurira, mijenja, dopunjuje ili na bilo koji način obavještava čitaoca o bilo kojoj temi uključujući ovdje, niti o bilo kojem mišljenju, projekciji, predviđanju ili procjeni prikazanoj ovdje, niti o bilo kojoj izmjeni koja može uticati na tačnost urbanističkih i katastarskih podataka. Kupcu se ne naplaćuje agencijska provizija; umjesto toga, proviziju agenciji plaća prodavac/prodavci.