

Na prodaju: Luksuzni apartmani s vrhunskim sadržajima, Dobrota
-
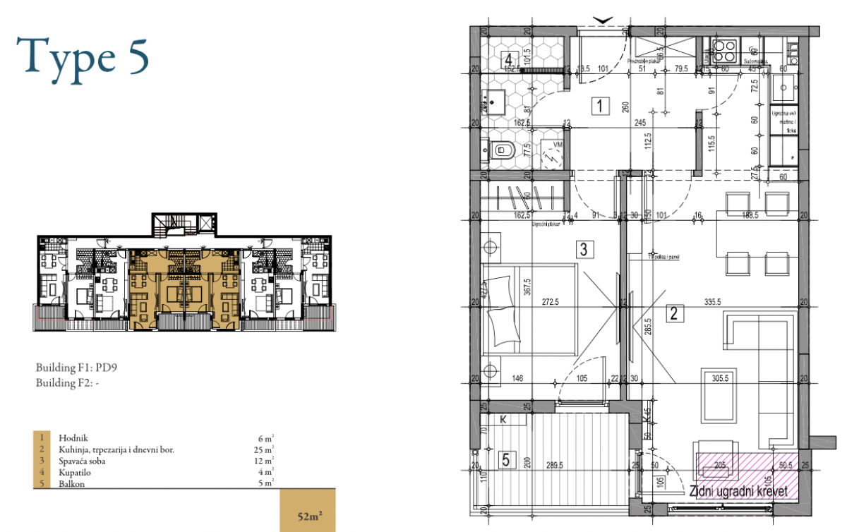
1
-
1
-
52 m2
Opis
IDD2328 Zgrada u kojoj se nalazi ovaj stan nudi luksuzne pogodnosti kako bi se osigurao visok nivo udobnosti i sigurnosti. Oklopna ulazna vrata pružaju dodatnu sigurnost, dok granitne pločice krase hodnike i stepenište. Drveno-aluminijski prozori opremljeni daljinskim upravljačem za roletne nude i eleganciju i praktičnost. Unutrašnja stolarija od masivnog drveta doprinosi sofisticiranosti. Porcelanska keramika ukrašava dnevni boravak, kupatilo, hodnik i kuhinju, dok podno grijanje osigurava toplinu i udobnost u ovim prostorijama. Spavaće sobe imaju elegantan parket, koji dopunjuje ukupni estetski utisak. Klima uređaji u svakoj sobi održavaju ugodnu unutrašnju atmosferu tokom cijele godine. Dodatno, svaki stan je opremljen sistemom za dojavu požara i video interfonom radi dodatne sigurnosti i praktičnosti. Prostori su dodatno osigurani video nadzorom i fizičkim sigurnosnim mjerama 24 sata dnevno. Za više informacija, kontaktirajte nas na: https://www.searealty.me/me/kontakt
Sadržaji
- Klima
- Radijatori
- Balcony Klima
- Security System Klima
Detalji
- Ref. ID:
- 2328
- Objavljeno:
- May 13, 2025
- Tip nekretnine:
- Stan
- Grad:
- Kotor
- Mjesto:
- DOBROTA I
- Cijena po m2:
- Cijena na upit
- Tip namještaja:
- Nenamješteno
- Sprat:
- Godina izgradnje:
Odgovornost i troškovi kupovine
Kupac je odgovoran za plaćanje notarskih taksi, bilo kojeg poreza na prenos nekretnina i svih povezanih pravnih troškova. Agencija Sea Realtor nije odgovorna za tačnost informacija prikazanih ovdje; iste se isključivo zasnivaju na informacijama koje smo dobili od naših klijenata ili vlasnika. Agencija Sea Realtor nije u obavezi da ažurira, mijenja, dopunjuje ili na bilo koji način obavještava čitaoca o bilo kojoj temi uključujući ovdje, niti o bilo kojem mišljenju, projekciji, predviđanju ili procjeni prikazanoj ovdje, niti o bilo kojoj izmjeni koja može uticati na tačnost urbanističkih i katastarskih podataka. Kupcu se ne naplaćuje agencijska provizija; umjesto toga, proviziju agenciji plaća prodavac/prodavci.