
























Ogroman kompleks stanova uz obalu mora, Kotor, Dobrota
-
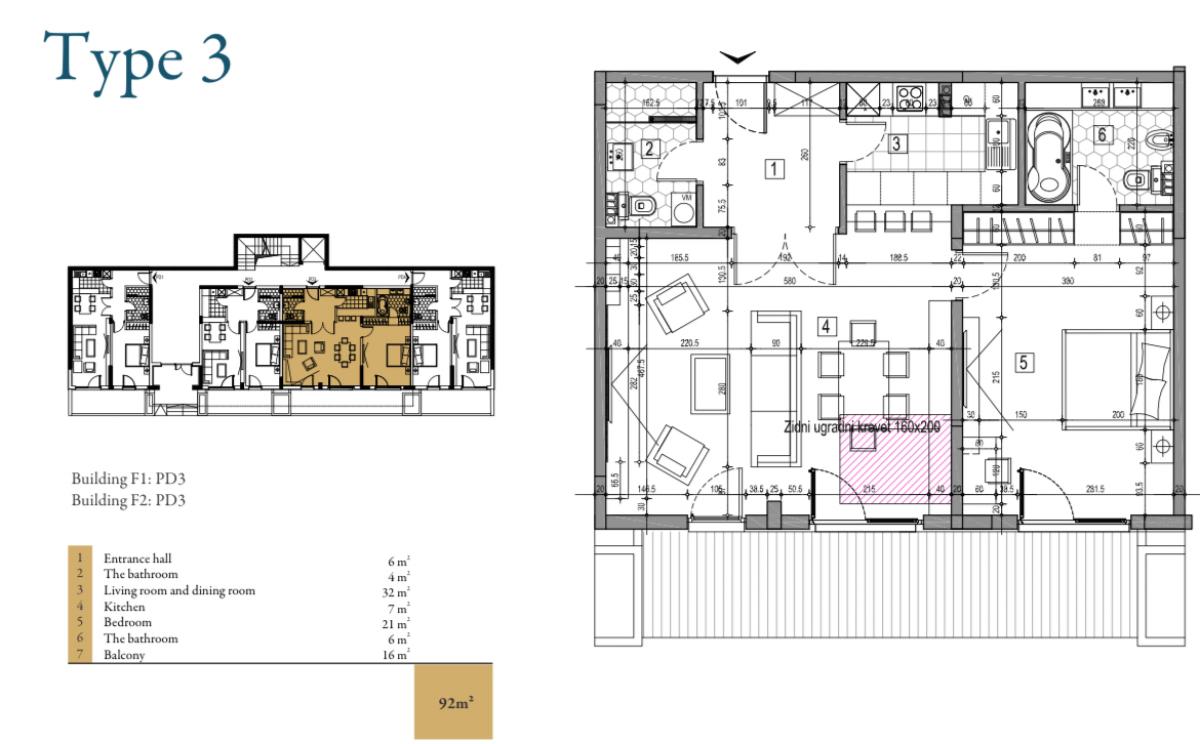
92 m2
Opis
IDD2654 Ovaj kompleks se sastoji od četiri objekta (F1, F2, F3 i SPA centar). Ponuda uključuje objekat F3, koji sadrži 17 apartmana, vanjski bazen i tri pomoćna objekta, SPA centar sa bazenom, wellness centar, fitnes klub, frizerski salon, restoran i konferencijsku salu. Ponuda objekata F3 i SPA takođe može biti predložena uz mogućnost kupovine 14 apartmana u susjednim objektima F1 i F2. Ponuda uključuje upravljačku kompaniju koja zaključuje ugovore sa ostalim vlasnicima u zgradama F1 i F2, što bi dodatno uključivalo minimalno 50 apartmana za upravljanje. U okviru kompleksa nalazi se dječje igralište, bujna zelena područja i parking. Takođe, postoji parking za goste kompleksa odmah pored glavne ceste. Boka Bellevue trenutno pregovara sa državnim institucijama o zakupu investicijske plaže u neposrednoj blizini kompleksa. Ova investicija povećava ekskluzivnost čitavog kompleksa. Takođe, u toku su pregovori sa vlasnicima zemljišta ispred kompleksa, koje bi bilo namijenjeno isključivo za sportske terene. Za više informacija, kontaktirajte nas na: https://www.searealty.me/me/kontakt
Sadržaji
- Klima
- Radijatori
- TV
- Lift
Detalji
- Ref. ID:
- 2654
- Objavljeno:
- May 13, 2025
- Tip nekretnine:
- Stan
- Grad:
- Kotor
- Mjesto:
- DOBROTA I
- Cijena po m2:
- Cijena na upit
- Tip namještaja:
- Sprat:
- Godina izgradnje:
Odgovornost i troškovi kupovine
Kupac je odgovoran za plaćanje notarskih taksi, bilo kojeg poreza na prenos nekretnina i svih povezanih pravnih troškova. Agencija Sea Realtor nije odgovorna za tačnost informacija prikazanih ovdje; iste se isključivo zasnivaju na informacijama koje smo dobili od naših klijenata ili vlasnika. Agencija Sea Realtor nije u obavezi da ažurira, mijenja, dopunjuje ili na bilo koji način obavještava čitaoca o bilo kojoj temi uključujući ovdje, niti o bilo kojem mišljenju, projekciji, predviđanju ili procjeni prikazanoj ovdje, niti o bilo kojoj izmjeni koja može uticati na tačnost urbanističkih i katastarskih podataka. Kupcu se ne naplaćuje agencijska provizija; umjesto toga, proviziju agenciji plaća prodavac/prodavci.